315 Spokane Street, 5, Reno, NV 89512
315 Spokane Street, 5, Reno, NV 89512
2,622 ± SF Retail/Industrial/Flex Space Available in Downtown Reno
2,622± SF of retail/industrial/flex space on Spokane Street available for lease. This space was formerly occupied by FeedWorld Trailers/LS Tractor, and is located next to Hammer & Saw and TheatreWorks.
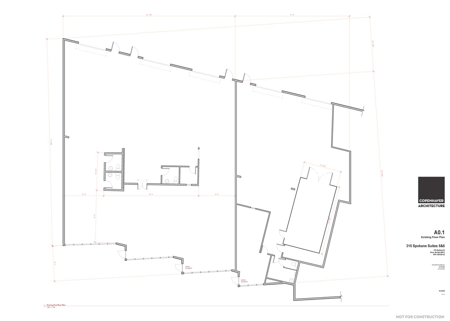
The layout offers a front office/reception, storage room, an abundance of shop area, and one restroom - see floor plan in the photos. There are two 10'x9' roll-up doors accessible from the back of the building. There is convenient onsite parking and a dedicated outdoor area located directly behind the unit.
The property is designated under MU (Mixed Use) Suburban zoning, offering exceptional flexibility for a wide range of business opportunities. Located at East Fourth Street & Spokane Street, less than half a mile from the I-80 / Wells Avenue freeway on-ramp.
The layout offers a front office/reception, storage room, an abundance of shop area, and one restroom - see floor plan in the photos. There are two 10'x9' roll-up doors accessible from the back of the building. There is convenient onsite parking and a dedicated outdoor area located directly behind the unit.
The property is designated under MU (Mixed Use) Suburban zoning, offering exceptional flexibility for a wide range of business opportunities. Located at East Fourth Street & Spokane Street, less than half a mile from the I-80 / Wells Avenue freeway on-ramp.
Contact us:





